Humpert & Kösel-Humpert
humpert & kösel-humpert
Freie Architekten und Stadtplaner
Menü
news
work
office
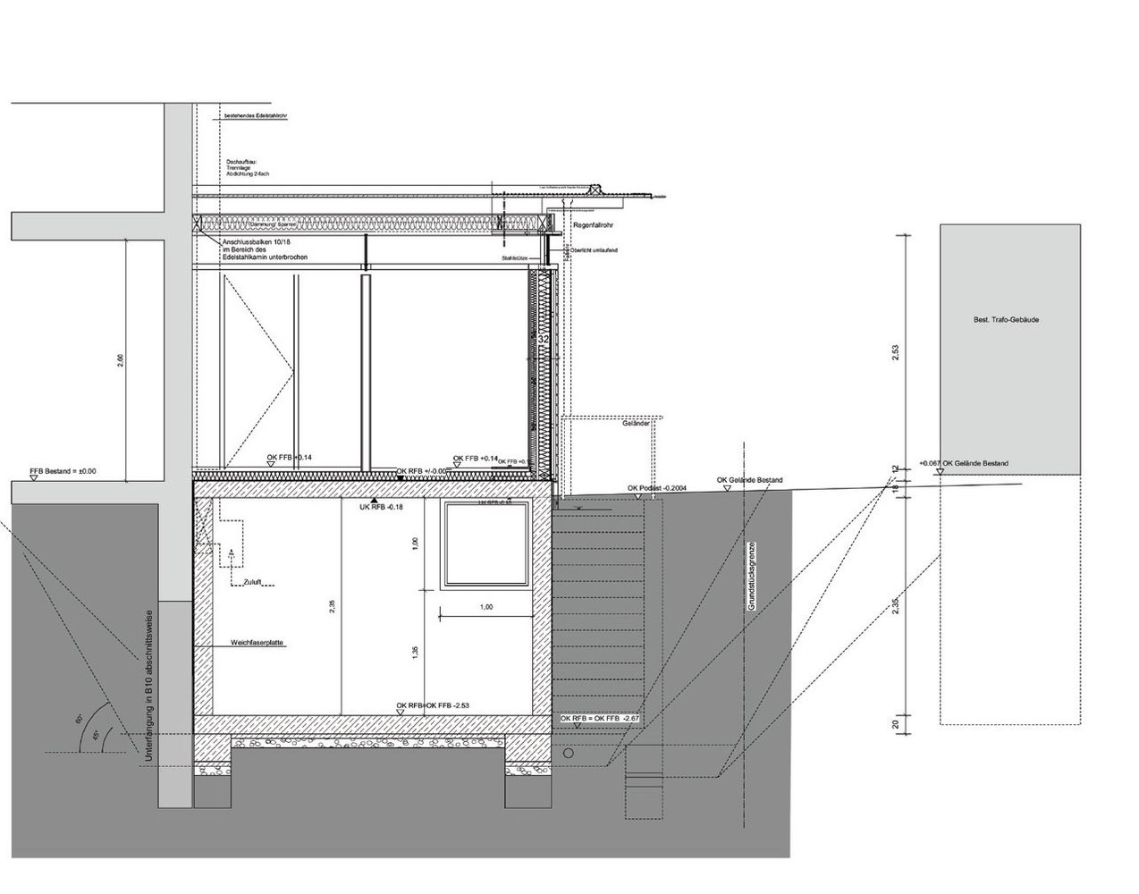
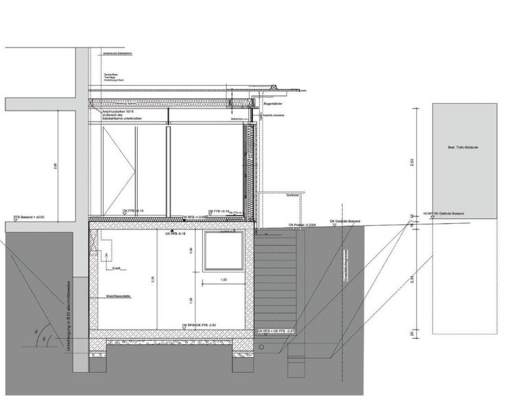
Images tagged "elementbauweise"